Больше информации по резюме будет доступно после регистрации
ЗарегистрироватьсяБыла сегодня в 08:07
Кандидат
Женщина, 41 год, родилась 11 ноября 1984
Не ищет работу
Йошкар-Ола, не готова к переезду, не готова к командировкам
Технолог , конструктор мебели . базис мебель , удаленно
150 000 ₽ на руки
Специализации:
- Технолог
Занятость: проектная работа
График работы: удаленная работа
Опыт работы 16 лет 9 месяцев
Апрель 2009 — по настоящее время
16 лет 9 месяцев
ООО
Дизайнер-конструктор
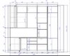
дизайн и проектирование ,прием заказов от частных лиц и организаций, формирвание стоимости изделия, разработка корпусной мебели, шкафов купе, кухни, продажа мебели из торгового зала и по каталогам , поиск необходимых материалов, разработка тех. документации для производства. Базис мебельщик 11 ( по необходимости последняя лицензионная версия) .
Навыки
Уровни владения навыками
Продвинутый уровень
Опыт вождения
Права категории B
Обо мне
Знание техники продаж.Составление дизайн-проекта мебели .
Умение вести переговоры.
Ведение и расширение клиентской базы.
Консультирование и предоставление клиентам информации о мебели.
Работа на выставках.
Телефонные переговоры‚ прием и обработка заказов.
Составление и заключение договоров.
Контроль отгрузки и доставки товара. Работа с VIP заказами .
Уверенное владение ПК:Word‚ Excel‚ Базис-мебель11‚ kitchen Draw.
Базис мебель - модель, чертежи для производства , модель для ЧПУ с присадкой , раскрой , материалы
Высшее образование
2003
Марийский Государственный Технический Университет
Лесопромышленный факультет
Знание языков
Гражданство, время в пути до работы
Гражданство: Россия
Желательное время в пути до работы: Не имеет значения















